-
Photos
-
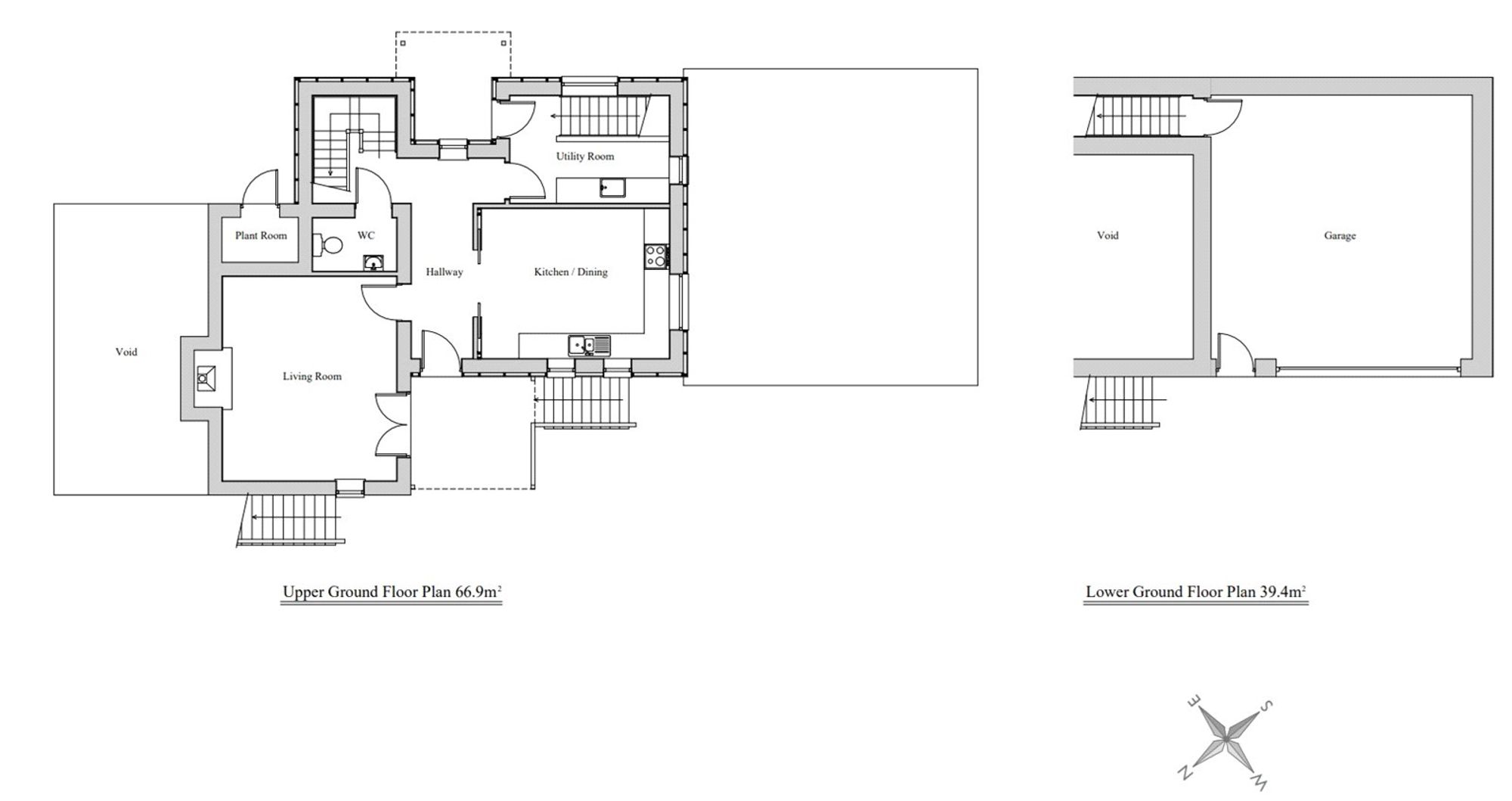
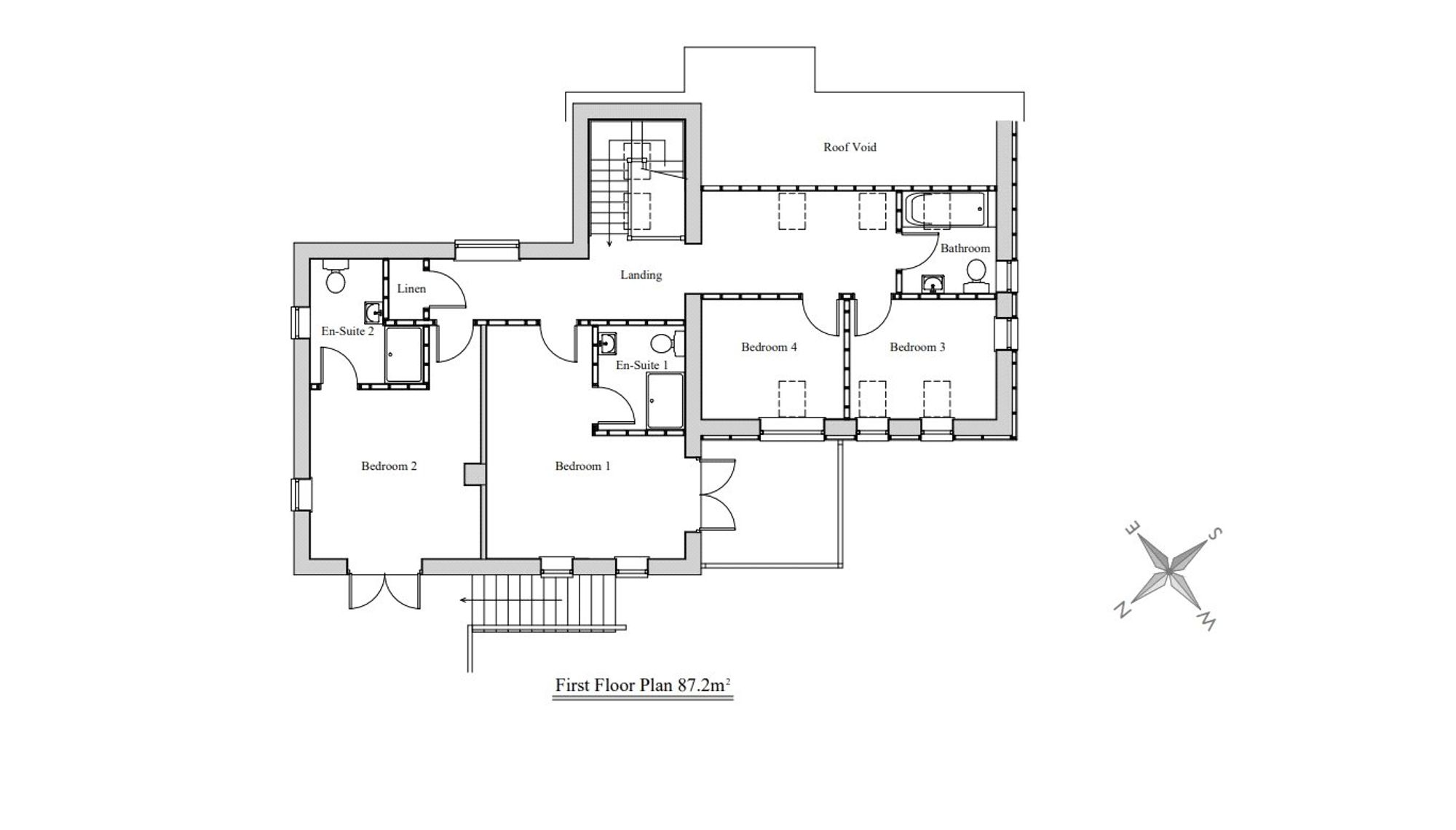
Floorplan
-
Map
-
EPC
Land To The North Of, Steventon New Road, Ludlow, SY8 1JZ
Land for sale
£225,000Offers in Region of
Property Description
Building your own home in Ludlow, Shropshire, offers the unique opportunity to create a personalised living space in one of the most picturesque and historically rich towns in the UK. Known for its medieval charm, stunning countryside views, and a vibrant food scene, Ludlow provides a perfect blend of rural tranquillity and cultural activity.
The building plot located on Steventon New Road in Ludlow represents an exciting opportunity for self-builders or developers looking to construct a bespoke home in a desirable edge-of-town location. Encompassing approximately 0.35 acres, the plot offers generous space for a detached dwelling with ample scope for gardens, landscaping, and parking.
The site benefits from full planning consent, granted by Shropshire Council under reference 25/00347/FUL, for the erection of a contemporary residential dwelling. The approved plans propose a spacious house with a gross internal floor area of 195 square metres (approximately 2,100 square feet). This allows for a well-sized family home with flexibility in layout, potentially incorporating open-plan living areas, multiple bedrooms, and modern amenities across two storeys, subject to the approved design.
There is a CIL liability on the site however, it is worth noting that exemptions may be available for self-builders, provided the appropriate application is made and conditions are met.
Buyer and Seller Protection Available
Buyers Compliance Administration Fee: In accordance with The Money Laundering Regulations 2007, Agents are required to carry out due diligence on all Clients to confirm their identity, including eventual buyers of a property. The Agents use electronic verification system to verify Clients’ identity. This is not a credit check so will have no effect on credit history though may check details you supply against any particulars on any database to which they have access. By placing an offer on a property you agree that if your offer is accepted, subject to contract, we as Agents for the seller can complete this check for a fee of £75 inc VAT (£62.50 + VAT) per property transaction, non-refundable under any circumstance. A record of the search will be retained by the Agents.






















