-
Photos
-
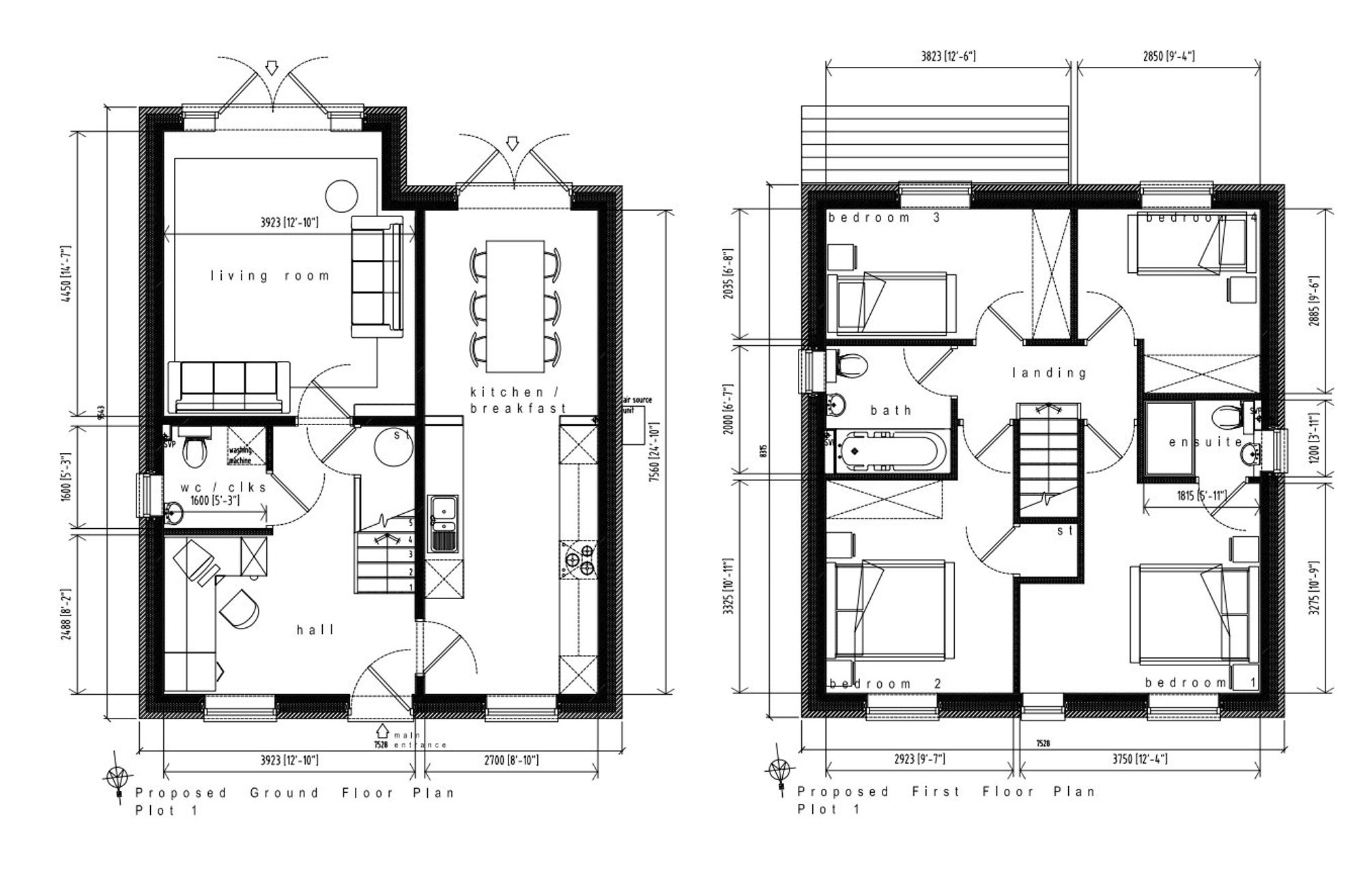
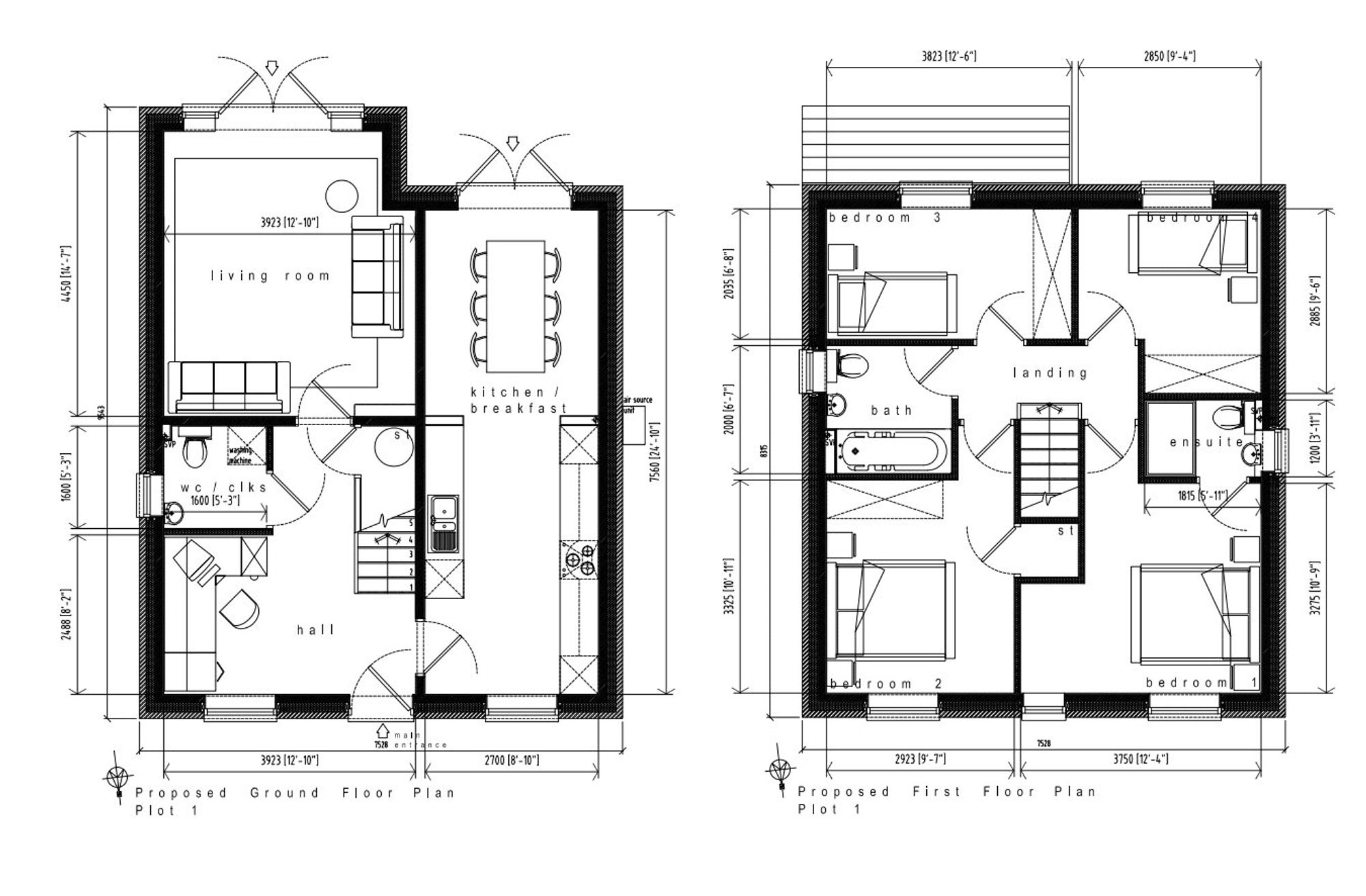
Floorplan
-
Map
-
EPC
Building Plot Adjacent, 78 Park Street, Madeley, Telford, TF7 5JZ
Land for sale
£100,000Offers in Region of
Property Description
This is an excellent opportunity to acquire a well-positioned residential building plot in the established and popular area of Madeley, Telford.
The plot benefits from full planning permission, granted by Telford & Wrekin Council under reference TWC/2024/0829, for the erection of a four-bedroom detached family home.
The approved plans outline a thoughtfully designed property ideal for modern living, offering well-proportioned accommodation across two floors.
The ground floor will feature a welcoming entrance hallway with room for office space, a spacious living room, an open-plan kitchen and dining area and downstairs WC.
Upstairs, the layout provides four good-sized bedrooms, including a master bedroom with an en-suite shower room, along with a family bathroom.
The plot offers space for off-road parking and a private rear garden, making it perfectly suited for family life. Its position within a quiet residential setting also adds to its appeal for both self-builders and developers looking for a ready-to-go project.
Further documents relating to the planning and plot itself are available on request and include search results and other relevant reports.
Buyer and Seller Protection Available
Buyers Compliance Administration Fee: In accordance with The Money Laundering Regulations 2007, Agents are required to carry out due diligence on all Clients to confirm their identity, including eventual buyers of a property. The Agents use electronic verification system to verify Clients’ identity. This is not a credit check so will have no effect on credit history though may check details you supply against any particulars on any database to which they have access. By placing an offer on a property you agree that if your offer is accepted, subject to contract, we as Agents for the seller can complete this check for a fee of £75 inc VAT (£62.50 + VAT) per property transaction, non-refundable under any circumstance. A record of the search will be retained by the Agents.






















