-
Photos
-
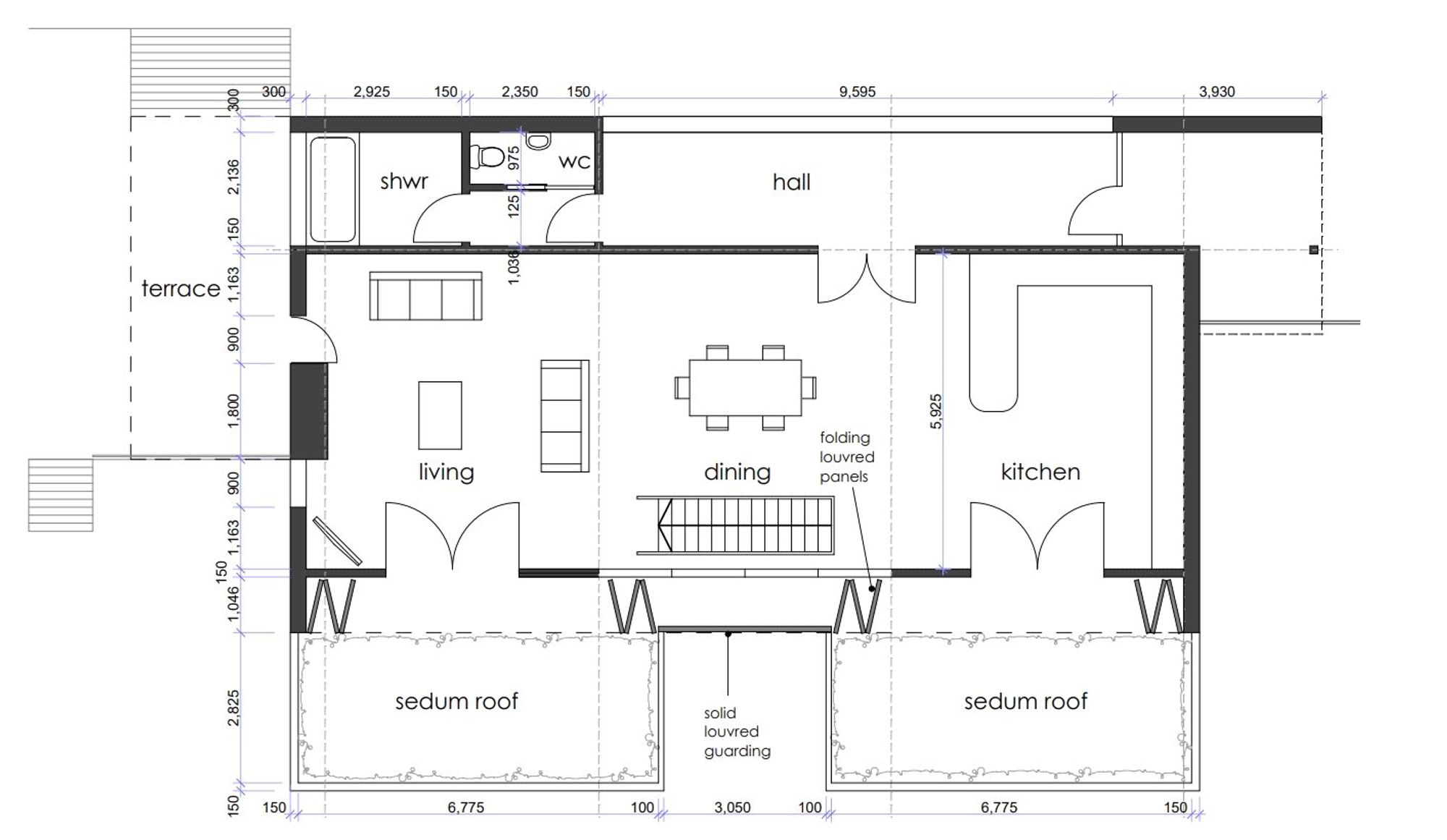
Floorplan
-
Map
-
EPC
Eco Home Building Plot, Sutton Wood, Shifnal, TF11 9NJ
Land for sale
£325,000Offers in Region of
Interested in this property?
Interested in this property?
Property Description
A genuinely unique building plot in a superb location with extensive grounds and views benefitting from full planning for the erection of an eco-home. With the build location at the top of the hill within the plot, the finished home, terraces and balcony with take in elevated views towards Coalport whilst maintaining privacy from the neighbouring properties.
The plot size is approximately 1.66 acres and the consented property is approximately 340m2 Gross internal floor area. This does not include the terraces or external covered spaces.
The static home which is currently on site will be included and could be extremely useful for either storage or to live in whilst the build takes place.
The planning consent was granted by Telford and Wrekin Council under planning reference TWC/2022/1027. The consent is dated 15/09/2023 on the planning portal .
Viewing is strictly by appointment please.
All material information is readily available from the Agent or via the listing for this property on Rightmove or OnTheMarket.
Buyers Compliance Administration Fee: In accordance with The Money Laundering Regulations 2007, Agents are required to carry out due diligence on all Clients to confirm
their identity, including eventual buyers of a property. The Agents use electronic verification system to verify Clients’ identity. This is not a credit check so will have no effect on credit history though may check details you supply against any particulars on any database to which they have access. By placing an offer on a property you agree that if your offer is accepted, subject to contract, we as Agents for the seller can complete this check for a fee of £75 inc VAT (£62.50 + VAT) per property transaction, non-refundable under any circumstance. A record of the search will be retained by the Agents.





















