-
Photos
-
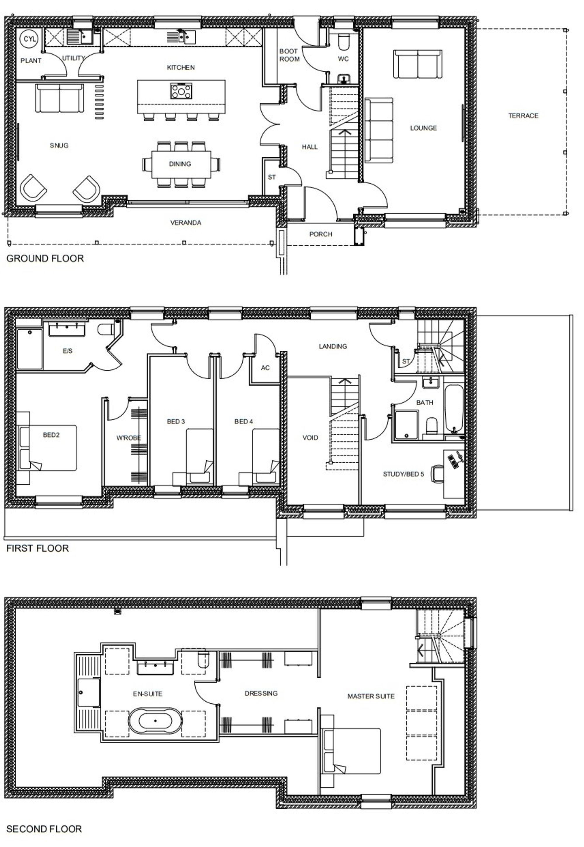
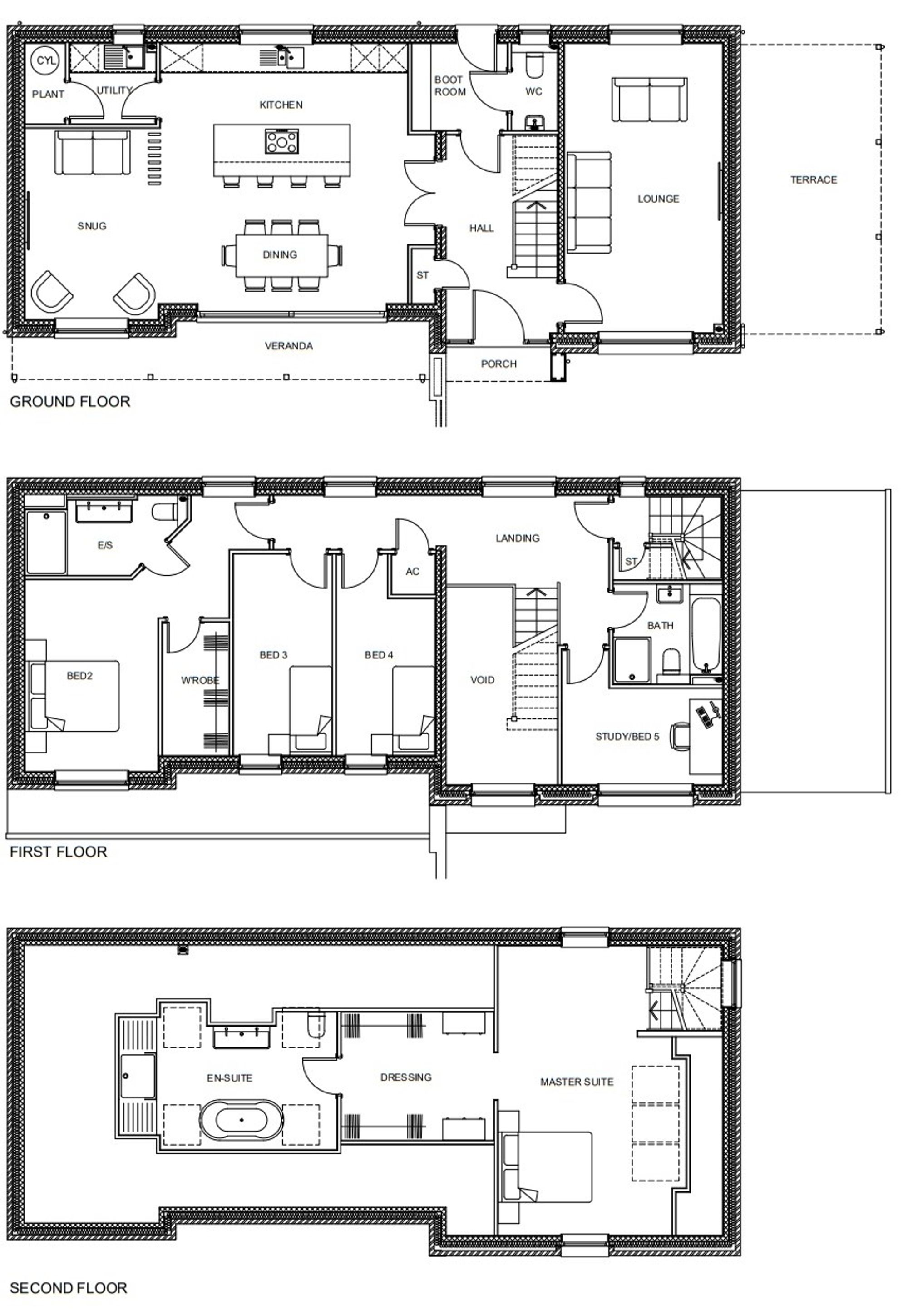
Floorplan
-
Map
-
EPC
Brook House Building Plot, Dale Road, Coalbrookdale, Telford, Shropshire, TF8 7DT
Land (residential) for sale
£245,000Offers in Region of
Interested in this property?
Interested in this property?
Property Description
Exceptional building plot on the edge of Ironbridge which has been progressed to the point that construction work can start without delay thanks to the current owner completing the site clearance, preliminary technical work and discharging all pre-commencement planning conditions and implementing the planning approval.
The planning reference on Telford & Wrekin Council's planning portal is TWC/2021/1200 with the decision notice dated 25/05/2022.
We are advised that the plot on offer here is just over a third of an acre in size and that the gross internal floor area of the finished property will be 2388ft² arranged over three floors. Providing generous kitchen, dining, family & lounge areas to the ground floor and 4 bedrooms (2 with walk-in wardrobes), 3 bathrooms and a study on the upper floors.
This fantastic building plot occupies a quiet position off Dale Road in the conservation area of Coalbrookdale. The site has a tranquil setting with large woodland area to the rear and pretty babbling brook to the front.
Coalbrookdale is renowned for being the birth place of Abraham Darby who is associated with the construction of the World's first iron bridge. Ironbridge - now a world heritage site - is always attractive to house hunters with its wealth of history and local amenities including shops, chemists and a selection of eating houses etc. Coalbrookdale also has an excellent junior school and doctor's surgery. Telford Town Centre is approximately 8 miles away with its range of leisure facilities, department stores, retail parks, railway station and access to the M54 motorway link road leading to the main motorway network.
Should the new owner wish to have a full working drawing pack included in the sale then this will be available by separate negotiation.
Buyer and Seller Protection Available
Buyers Compliance Administration Fee: In accordance with The Money Laundering Regulations 2007, Agents are required to carry out due diligence on all Clients to confirm their identity, including eventual buyers of a property. The Agents use electronic verification system to verify Clients’ identity. This is not a credit check so will have no effect on credit history though may check details you supply against any particulars on any database to which they have access. By placing an offer on a property you agree that if your offer is accepted, subject to contract, we as Agents for the seller can complete this check for a fee of £75 inc VAT (£62.50 + VAT) per property transaction, non-refundable under any circumstance. A record of the search will be retained by the Agents.





















